No more sharing. Housing on your own.

Minimum housing in Usera, (Madrid).
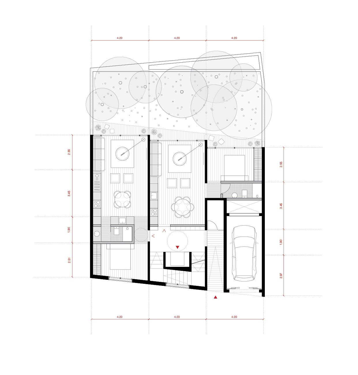
Exploration of the production of 11 houses with cross-laminated timber in the vicinity of Antonio Lopez. Adressing the lack of quality and affordable offer for young adults in Madrid.
Architecture.
Bussines Design.



















Cross Laminated Timber (CLT) is a wood panel that typically consists of three, five or seven layers of dimension lumber oriented at right angles to each other and then glued together to form structural panels with exceptional strength, dimensional stability, and stiffness.
''For every m3 of concrete, one tonne of CO2 is emitted into the atmosphere. When building with CLT, ''sequestered carbon'' is used, as the tree feeds on carbon as it grows. Therefore, despite all the energy used in the extraction and manufacturing process, wood will never match the amount of carbon it holds 'sequestered'''


A furniture system configures the whole house and allows different uses, a closet, bathroom, kitchen, shelves, sofa, manufactured in series to optimize production. The precision of custom-made furniture multiplies the options, and increases the perception of space, and thanks to the fact that it is serialized, it is affordable for everyone.

©2024 Peregrin Rua All Rights Reserved
peregrinrua@gmail.com +34 644412104